江蘇杰達鋼結構工程有限公司專注于提供彩色鋼板拱形屋頂、拱形屋面及彩鋼拱形棚等產品,涵蓋從設計、制作到安裝的全方位服務。公司擁有先進的彩色鋼板拱形屋頂成形機組和鋼構件生產線,致力于提供高質量的鋼結構屋面解決方案,確保產品滿足各類建筑項目需求。
![圈梁預埋件平面布置圖]()
圈梁預埋件平面布置圖
江蘇杰達鋼結構工程有司今天給大家帶來18張拱形屋頂節點詳圖,下圖是圈梁預埋件平面布置圖。...
![預埋件螺栓平面布置圖]()
預埋件螺栓平面布置圖
江蘇杰達鋼結構工程有司今天給大家帶來18張拱形屋頂節點詳圖,下圖是預埋件螺栓平面布置圖。...
![拱形屋頂山墻加弧形泛水板與屋面板連接圖]()
拱形屋頂山墻加弧形泛水板與屋面板連接圖
江蘇杰達鋼結構工程有司今天給大家帶來18張拱形屋頂節點詳圖,下圖是拱形屋頂山墻加弧形泛水板與屋面板連接圖。...
![拱形屋頂山墻打釘節點圖]()
拱形屋頂山墻打釘節點圖
江蘇杰達鋼結構工程有司今天給大家帶來18張拱形屋頂節點詳圖,下圖是拱形屋頂山墻打釘節點圖。...
![拱形屋頂預埋件圈梁設計圖]()
拱形屋頂預埋件圈梁設計圖
江蘇杰達鋼結構工程有司今天給大家帶來18張拱形屋頂節點詳圖,下圖是拱形屋頂預埋件圈梁設計圖。...
![拱形屋頂鋼托班(預埋件)設計圖]()
拱形屋頂鋼托班(預埋件)設計圖
江蘇杰達鋼結構工程有司今天給大家帶來18張拱形屋頂節點詳圖,下圖是拱形屋頂鋼托班(預埋件)設計圖。...
![拱形屋面板與托板打釘節點圖]()
拱形屋面板與托板打釘節點圖
江蘇杰達鋼結構工程有司今天給大家帶來18張拱形屋頂節點詳圖,下圖是拱形屋面板與托板打釘節點圖...
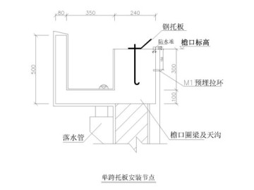
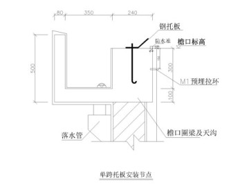
![U型磚混結構連跨拱形屋頂安裝節點圖]()
U型磚混結構連跨拱形屋頂安裝節點圖
江蘇杰達鋼結構工程有司今天給大家帶來18張拱形屋頂節點詳圖,下圖是U型磚混結構連跨拱形屋頂安裝節點圖。...
![連跨拱形屋頂安裝節點圖]()
連跨拱形屋頂安裝節點圖
江蘇杰達鋼結構工程有司今天給大家帶來18張拱形屋頂節點詳圖,下圖是連跨拱形屋頂安裝節點圖。...
![拱形屋頂預埋件平面布置圖]()
拱形屋頂預埋件平面布置圖
江蘇杰達鋼結構工程有司今天給大家帶來18張拱形屋頂節點詳圖,下圖是拱形屋頂預埋件平面布置圖。...
![拱形屋頂預埋件螺栓安裝圖]()
拱形屋頂預埋件螺栓安裝圖
江蘇杰達鋼結構工程有司今天給大家帶來18張拱形屋頂節點詳圖,下圖是拱形屋頂預埋件螺栓安裝圖。...
![拱形屋頂板與山墻安裝節點圖]()
拱形屋頂板與山墻安裝節點圖
江蘇杰達鋼結構工程有司今天給大家帶來18張拱形屋頂節點詳圖,下圖是拱形屋頂板與山墻安裝節點。...
